Az értékesítő:
Harangi László
+36 30 514 6564

Eladó lakás Budapest XIII. ker, 119 900 000 Ft, 81 négyzetméter

119 900 000 Ft
lakás, 81 négyzetméter
Építőanyag:
Tégla
Egész szobák:
3
Komfort fokozat:
Összkomfort
Ingatlan állapota:
Kitűnő
Azonosító:
11579526
Értékesítés típusa:
eladó
Ingatlan típusa:
lakás
Település:
Budapest XIII. ker
Alapterület:
81
Ár:
119 900 000 Ft
Emelet:
2. emelet
Fűtés jellege:
Cirkó
Kilátás:
panorámás
Építési év:
1-5 éves
Erkély:
Van
Lift:
Van
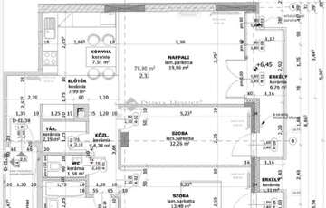
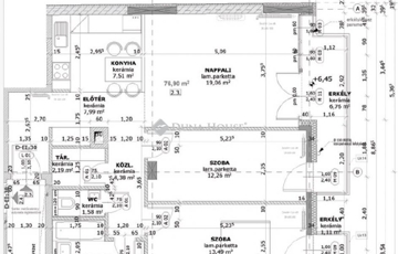
AZONNAL KÖLTÖZHETŐ!! Újszerű erkélyes lakás Angyalföldön! Eladó egy 2. emeleten található , nappali + 2 hálószobával rendelkező, klimatizált lakás 8nm erkéllyel. Az ingatlanhoz tartozik:- 2 liftes autóbeálló: 6.9MFt + 6MFt értékben, valamint plusz egy beálló ingyenesen- 2 tároló: 5MFt + 4,3Mft értékben (6,22nm + 5,35nm), valamint egy plusz tároló 2,8nm ingyenesen.Exkluzív tervezésű 1.800m²-es parkosított belső díszkert játszótérrel.- Minden lakáshoz elegáns, porfestett acél francia erkélyes terasz- Biztonsági kaputelefon és térfigyelő kamerarendszer a lakópark területén és parkoló-, tárolószinteken- Gyorsliftek minden emeletre, még a parkoló és tárolók szintjére is- Légkondicionáló készülékekhez elektromos csatlakozási előkészítés- Exkluzív környezet mindössze 71 lakással- Szupermarket és orvosi rendelő a társasház közvetlen közelében- Kiváló hang- és hőszigetelő beton vázszerkezet. A városi előnyök mellett a természet élményét a közelben csörgedező Rákos-patak is fokozza, mely ideális helyszíne a természet- közeli kikapcsolódásnak egy kellemes séta, vagy éppen a napi kocogás helyszíneként. Ezenfelül a partján hatalmas alapterületű, gondozott kutyafuttatók is találhatóak. Elhelyezkedésének egyik fő előnye a kerületben található intézmények sokasága. A közelben számtalan bölcsőde, óvoda, iskola és egészségügyi intézmény található. A sportoláshoz ideális helyszín az Angyalföldi sportközpont, a Dagály Fürdő és a Palatinus Strand.A szórakozást keresőknek a közelben számos színház (József Attila Színház, Vígszínház), galéria és mozi kínál kikapcsolódást. A bevásárlásra pedig a környék szupermarketjei (Lidl, Aldi, Penny Market), a kisboltok, a Váci úti Tesco, a Duna Plaza, a Lehel téri piac és az Újpesti Városközponti üzletei nyújtanak megoldást. A kertvárosi hangulat mellett a környék tömegközlekedése is kiváló. A 14-es villamos Fiastyúk utcai megállója rövid sétányira, míg a 30, 32, 20E, 30A és 230 jelű buszok megállója is pár percnyire található. A lakópark ezen felül autóval is könnyedén megközelíthető Referencia szám: LK036850
https://ingatlanok.hu/elado/lakas/budapest-xiii-ker/120-millio-ft;81-negyzetmeter;3-szoba;tegla-epitesu/11579526