Eladó lakás Budapest V. ker 141 472 875 Ft

Leírás

Eladásra kínálunk egy páratlan, klimatizált lakást !!
Budapest Belvárosának egyik legkiemelkedőbb részén, mindössze öt perc sétára a lenyűgöző Bazilikától. Ez az exkluzív ingatlan tökéletes választás lehet otthonteremtéshez vagy akár befektetési célokra is. A lakás egy elegáns, rendszeresen karbantartott társasház ötödik emeletén található, ahova egy modern lift biztosít kényelmes feljutást. Az ingatlan frissen felújított, teljesen bútorozott és gépesített, így az új tulajdonos azonnal birtokba veheti. Az eladási ár 350 000 euró, amely egy valódi városi gyöngyszemet kínál. **Miért érdemes ezt a lakást választania?** - **Kiváló lokáció:** Az V. kerület legfrekventáltabb részén, a Szabadság tér közelében helyezkedik el, ahonnan a város legjobb éttermei, kávézói, bevásárlóközpontjai és közlekedési csomópontjai egy karnyújtásnyira találhatók. - **Világos, napfényes terek:** Az utcára néző ablakokon keresztül beáradó természetes fény otthonossá és barátságossá varázsolja az ingatlant. - **Modern kialakítás:** Az 1,5 szobás lakás tágas nappalival, kényelmes hálószobával, különálló, teljesen felszerelt konyhával, valamint elegáns fürdőszobával és előszobával rendelkezik. - **Teljes körű felszereltség:** Az ingatlan klimatizált, gáz cirkó fűtéssel ellátott, és modern beépített bútorokkal, illetve gépekkel felszerelt. Ez az otthon ideális választás azok számára, akik a városi élet dinamizmusát szeretnék élvezni, vagy egy hosszú távon is értékálló befektetést keresnek. **Tegye meg az első lépést az álomotthona felé!**

Referencia szám: LK051501

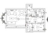
Lakás részletei

Ár: 141 472 875 Ft
Méret: 58 négyzetméter
Azonosító: 11578399
Irodai azonosító: LK051501-5080683
Cím: Eladó 58 nm-es lakás Budapest 5. ker.
Emelet: 5. emelet
Építőanyag: Tégla
Fűtés jellege: Cirkó
Ingatlan állapota: Kitűnő
Komfort fokozat: Összkomfort
Építési év: 50 évesnél régebbi
Kilátás: utcai
Egész szobák: 2

Egyéb jellemzők

  • Lift

Térkép